Практична робота №5
Тема: Розрахунок посадок вальниць
котіння в з’єднаннях.
Мета: Навчитись розраховувати посадки з’єднань кілець вальниць котіння в
з’єднаннях з валом та отвором. Навчитись будувати схеми розташування полів
допусків валу і отвору, спряжених з кільцями вальниць котіння.
Контроль засвоєння: Захист звітів в усній чи письмовій формі, або тестування.
Обладнання
та оснащення робочого місця
1.
технічні нормативно-правові акти
(ТНПА);
2.
Довідники, додатки до виконання практичних робіт тощо;
3.
Вальниці котіння.
Завдання, хід
і порядок виконання роботи
1.
Визначте граничні
значення зазорів, натягів в спряженні внутрішнього кільця вальниці d з валом і
зовнішнього кільця D з отвором корпусної деталі, а також для стандартної
посадки (табл. 6.1. і табл. 6.2.) побудувавши відповідно схеми
розміщення полів допусків.
2.
Запишіть висновок,
порівнявши зазори, натяги внутрішнього кільця вальниці з валом та стандартної
посадки отвору з валом.
3.
Всі одержані
результати запишіть в зведену таблицю обрахунків.
4.
Викресліть по типу
рис. 6.1. ескізи (креслення) підшипникового з’єднання та стандартної
посадки рис.6.2 і проставте їх розміри.

|
З’єднання |
Отвір |
Вал |
Рис. 6.1.
Ескіз підшипникового з’єднання

|
З’єднання |
Корпус |
Вал |
Рис. 6.2.
Ескіз підшипникового з’єднання
Таблиця 6.1. Варіанти до
виконання практичної роботи
|
Передостання цифра шифру |
Позначення вальниці за ГОСТ 8338-75 |
Діаметр кілець вальниці, мм |
|
|
внутрішній d |
зовнішній D |
||
|
0 |
416 |
80 |
20 |
|
1 |
136 |
180 |
280 |
|
2 |
152 |
260 |
400 |
|
3 |
26 |
6 |
19 |
|
4 |
228 |
140 |
250 |
|
5 |
240 |
200 |
360 |
|
6 |
300 |
10 |
35 |
|
7 |
306 |
30 |
72 |
|
8 |
324 |
120 |
260 |
|
9 |
410 |
50 |
130 |
Таблиця 6.2. Завдання до
виконання практичної роботи
|
Остання цифра шифру |
Клас точності вальниці |
Умовне позначення полів допусків |
||
|
Валу |
Отвору корпуса |
Стандартної посадки |
||
|
0 |
0 |
k6 |
G7 |
H6/k6 |
|
1 |
2 |
js4 |
K5 |
H5/js4 |
|
2 |
4 |
n6 |
Js6 |
H5/n6 |
|
3 |
5 |
m5 |
H6 |
H5/m5 |
|
4 |
6 |
n6 |
Js7 |
H6/n6 |
|
5 |
0 |
g6 |
H8 |
H6/g6 |
|
6 |
2 |
k4 |
M5 |
H4/k4 |
|
7 |
4 |
k5 |
N6 |
H5/k5 |
|
8 |
5 |
js5 |
M6 |
H5/js6 |
|
9 |
6 |
h6 |
N7 |
H6/h6 |
Приклад виконання
Для кулькової вальниці 0-416 ГОСТ 520-71 знайдіть граничні значення
зазорів, натягів в спряженні внутрішнього кільця вальниці d=80 мм з валом Æ80k6 і зовнішнього кільця вальниці D=200 мм з отвором корпуса Æ200G7, а також для стандартної посадки Æ80H6/k6, побудувавши схеми розміщення полів допусків. Запишіть одержані
результати в таблицю. Накресліть ескізи підшипникового з’єднання і стандартної
посадки.
За ГОСТ 520-71 або з додатків вибираємо граничні відхилення внутрішнього
кільця вальниці класу точності 0: d=Æ80-0.015
За ГОСТ 520-71 або додатків вибираємо граничні відхилення зовнішнього
кільця вальниці класу точності 0: D=Æ200-0.030
За ГОСТ 25347-82 або з додатків вибираємо граничні відхилення для валу: Æ
. За ГОСТ 25347-82 або з додатків вибираємо граничні
відхилення для отвору корпуса: Æ
.
За ГОСТ 25347-82 або з додатків вибираємо граничні відхилення для отвору Æ80H6 стандартної посадки Æ80H6/k6. Отвір Æ
.
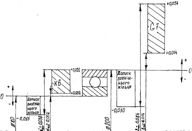
Розраховуємо розмірні параметри в спряженні внутрішнього кільця вальниці
d=80 мм з валом Æ80k6.
Для отвору D=80 мм; ES=0; EI=-0,015 мм;
Для вала Æ80k6, d=80 мм; es=+0,021 мм;
ei=+0,002 мм.
Дана посадка з натягом, отже розраховуємо максимальний і мінімальний
натяги:
Nmax=dmax-Dmin=80,021-79,985=0,036 мм;
Nmax=es-EI=0,021(-0,015)=0.036 мм.
Nmin=dmin-Dmax=80,002-80,0=0,002 мм;
Nmin=ei-ES=0,002-0=0,002 мм.
Розраховуємо розмірні параметри в спряженні зовнішнього кільця вальниці
d=200 мм з отвором корпуса Æ200G7.
Для отвору Æ200G7; D=200 мм;
ES=+0,061 мм; EI=+0,015 мм;
Для вала d=200 мм; es=0; ei=-0,030 мм.
Дана посадка з зазором, отже розраховуємо максимальний і мінімальний
зазори:
Smax=Dmax-dmin=200,061-199,970=0,091мм;
Smax=ES-ei=0,061-(-0,030)=0,091мм.
Smin=Dmin-dmax=200,015-200.000=0,015 мм;
Smin=EI-es=0,015-0.000=0,015 мм.
Розраховуємо розмірні параметри для стандартної посадки Æ80H6/k6.
Для отвору Æ80H6; D=80 мм; ES=+0,019 мм;
EI=0.
Для вала Æ80k6; d=80 мм; es=+0,021 мм; ei=+0,002мм.
Дана посадка перехідна. Отже розраховуємо максимальний зазор і натяг, а
також допуск цієї посадки.
Nmax=dmax-Dmin=80,021-80,000=0,021 мм;
Nmax=es-EI=+0,021-0,000=0,021 мм;
Smax=Dmax-dmin=80,019-80,002=0,017 мм;
Smax=ES-ei=0,019-0,002=0,017 м;.
TSN=Smax +Nmax=0,017+0,021=0,038 мм; TSN=TD+Td=0,019+0,019=0,038 мм.
Будуємо схеми розміщення полів допусків для підшипників і стандартних
посадок (рис.6.3 і 6.4.)

Рис. 6.3.Схема розміщення
полів допусків вальниці в з’єднанні

Рис. 6.4. Схема розміщення полів допусків стандартної посадки
Результати розрахунків заносимо в таблицю 6.3
Таблиця 6.3. Зведена таблиця
розрахунків
|
Умовне позначення посадки |
Елемент |
Граничне відхилення, мм |
Граничне значення зазорів, натягів, мм |
||||
|
верхнє |
нижнє |
Smax |
Smin |
Nmax |
Nmin |
||
|
Посадка внутрішнього кільця вальниці на вал Æ80k6 |
внутрішнє кільце вальниці d=80 |
0,000 |
-0,015 |
– |
– |
0,036 |
0,002 |
|
вал Æ80k6 |
+0,021 |
+0,002 |
|||||
|
Посадка зовнішнього кільця вальниці в отворі корпуса Æ200G7 |
зовнішнє кільце вальниці D=200 мм |
0,000 |
-0,030 |
0,091 |
0,015 |
– |
– |
|
отвір корпуса Æ200G7 |
+0,061 |
+0,015 |
|||||
|
Стандартна посадка Æ80H6/k6 |
отвір Æ80H6 |
+0,019 |
0,000 |
0,017 |
– |
0,021 |
– |
|
вал Æ80k6 |
+0,021 |
+0,002 |
|||||
Висновок: порівнюючи посадку внутрішнього кільця вальниці на вал Æ80k6 із стандартною посадкою Æ80H6/k6 (див. рис. 6.3 і 6.4) можна зазначити, що вал Æ80k6 з внутрішнім кільцем вальниці утворює посадку з гарантованим зазором,
а цей вал в стандартній посадці з отвором Æ80H6 утворює перехідну посадку.
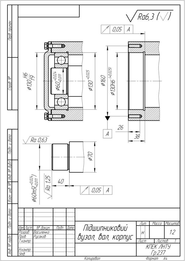
Викреслюємо ескізи (креслення) підшипникового з’єднання і стандартної
посадки (див. рис. 6.5).

Рис. 6.5.
Приклад оформлення креслення з’єднань кілець вальниці котіння з валом та корпусом
Питання для
самоконтролю
1. Назвіть основні
геометричні параметри кулькових вальниць котіння.
2. Перелічіть класи точності
вальниць котіння.
3. Які види навантаг можуть
сприймати кільця вальниць котіння?
4. Який принцип покладено в
основу утворення посадок вальниць котіння?
5. Як вибираються посадки
для внутрішнього та зовнішнього кілець вальниць в залежності від характеру
навантаження?
6. Що слід враховувати при
розрахунку і виборі стандартних посадок вальниць котіння?
7. Як позначаються на
кресленнях посадки вальниць котіння?
Рекомендована
література
1. Допуски и посадки: Справочник. В 2х ч. / Мягков В.Д., Палей М.А.,
Романов А.Б., Брагинский В.А. – Л.: Машиностроение, 1982. – Ч.1. 543с. / –
Ч.2. 445с.
2. Грушецька М.Г. Взаємозамінність, стандартизація та технічні
вимірювання. Приклади розв’язку задач: Навчальний посібник. – Луцьк: РВВ ЛДТУ,
2006. – 194с.
3. Козловский Н.С., Ключников В.М. Сборник примеров и задач по курсу
«Основы стандартизации, допуски, посадки и технические измерения». Учебное
пособие для учащихся техникумов. – М.: Машиностроение, 1983. – 304с.