Практична робота №4
Тема: Розшифрування умовних позначень
шорсткості на кресленнях.
Мета: Навчитись читати та розшифрувати
позначення шорсткості поверхонь на кресленнях деталей машин.
Контроль
засвоєння: Захист звітів в усній чи письмовій
формі, або тестування.
Обладнання
та оснащення робочого місця
1.
Креслення плоских шаблонів;
2.
технічні нормативно-правові акти
(ТНПА);
3.
Довідники, додатки до виконання практичних робіт тощо.
Завдання, хід
і порядок виконання роботи
1.
Викреслити ескіз деталі за розмірами, зазначених в
завданні.
2.
Вказати параметри шорсткості згідно завдання.
3.
Позначити допуски форми та розташування поверхонь.
4.
Розшифрувати умовні позначення параметрів п.2 та п.3., а
також не вказану на ескізі шорсткість поверхонь (див. рис. 5.2).
Таблиця 5.1. Шифри до виконання практичної роботи
|
Номінальне значення розмірів |
Номер шифрів до виконання |
||||||||||||
|
01-10 |
11-20 |
21-30 |
31-40 |
41-50 |
51-60 |
61-70 |
71-80 |
81-90 |
91-100 |
||||
|
Номінальний розмір |
8 |
10 |
15 |
18 |
20 |
23 |
25 |
28 |
30 |
32 |
|||
|
Номінальний розмір |
6 |
8 |
10 |
12 |
15 |
18 |
20 |
25 |
28 |
32 |
|||
|
Номінальний розмір |
20 |
22 |
24 |
25 |
30 |
32 |
36 |
40 |
45 |
50 |
|||
|
Номінальний розмір |
50 |
55 |
60 |
65 |
70 |
75 |
80 |
82 |
85 |
90 |
|||
|
Номінальний розмір |
38 |
40 |
45 |
48 |
50 |
55 |
60 |
65 |
75 |
80 |
|||
|
Номінальний розмір |
14 |
16 |
18 |
20 |
22 |
24 |
26 |
28 |
30 |
32 |
|||
|
Степінь точності |
||||||||||||||
|
Рамка 1. Допуск площинності |
10 |
9 |
- |
8 |
5 |
10 |
- |
- |
7 |
6 |
||||
|
Рамка 2. Допуск перетину осей відносно поверхонь Б в радіальному виразі |
8 |
- |
9 |
10 |
7 |
8 |
- |
6 |
10 |
- |
||||
|
Рамка 3. Допуск симетричності відносно розміру А в радіальному виразі |
6 |
11 |
- |
- |
9 |
6 |
9 |
- |
- |
11 |
||||
|
Рамка 4. Допуск перпендикулярності відносно поверхні Б. |
- |
- |
10 |
6 |
- |
- |
7 |
10 |
9 |
- |
||||
|
Рамка 5. Допуск співвісності відносно поверхні Б в
діаметральному виразі |
- |
6 |
7 |
- |
- |
- |
5 |
8 |
- |
9 |
||||

Рис. 5.1. Ескіз деталі типу «Корпус» до виконання практичної роботи

Рис. 5.2. Не вказана шорсткість до виконання практичної роботи
* Примітка: Рамки, для яких степінь точності в таблиці 5.1 не вказана, на
ескізі (кресленні) деталі не викреслювати.
Приклад виконання
1. Виконаємо ескіз (креслення) деталі згідно вихідних даних (див.
рис. 5.3).
2. Позначення допуску симетричності.
2.1. З таблиці додатку І знаходимо знак допуску симетричності
(ГОСТ 2.308-79) і заносимо його в першу частину рамки.
2.2. Визначаємо числове значення
допуску симетричності за ГОСТ 24643-81.
В умові до розв’язку заданий 5-й ступінь точності. Згідно
примітки до таблиці додатка, при призначенні допуску симетричності під
номінальним розміром розуміється діаметр даної поверхні обертання або розмір
між поверхнями, що утворюють даний елемент. У даному прикладі номінальний
розмір складає 30 мм. Для ступеня точності 5 і інтервалу розмірів від 18
до 30 мм, числове значення допуску в діаметральному виразі рівне 10 мкм, або
0,01 мм (див. додаток К). Значення допуску в міліметрах заносимо в другу
частину рамки, причому літера «
» указує на його діаметральний вираз (
- радіусний).
2.3. У третю частину рамки заносимо позначення бази. У
даному прикладі за базу прийнято ліву торцеву поверхню деталі типу «П’ята» і
позначено як
.

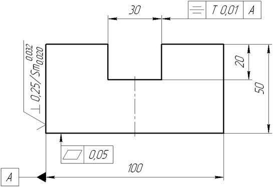
Рис. 5.3. Ескіз деталі типу «П’ята»
3. Позначаємо допуск площинності.
3.1. З таблиці додатку І знаходимо знак допуску
площинності (ГОСТ 2.398-79) і заносимо його в першу частину рамки (див.
рис. 5.3).
3.2. Визначаємо числове значення допуску площинності за
ГОСТ 24643-81. В умові до розв’язку заданий 10-й ступінь точності. Згідно
примітки до таблиці додатка, під номінальним розміром розуміється довжина
нормованої ділянки. У даному прикладі номінальний розмір складає 100 мм. Для
ступеня точності 10 і інтервалу розмірів від 63 до 100 мм, числове значення
допуску рівне 50 мкм, або 0,05 мм.
4. Розшифровуємо позначення шорсткості.
На кресленні позначено шорсткість поверхні
, яка задана параметром
- середній крок нерівностей профілю по базовій лінії, причому
його значення повинне бути в межах
на базової довжині
. Напрямок нерівностей поверхні – перпендикулярний
(ГОСТ 2789-73).
Не зазначена шорсткість
поверхонь.

Рис. 5.4. Знак не вказаної
шорсткості поверхонь
Позначення розміщується в правому верхньому кутку
креслення у вигляді знака (див. рис. 5.4) з відповідним розташуванням
відносно рамки формату і встановлює вимоги по параметру шорсткості
(середнє арифметичне
відхилення профілю) – не більше
для решти поверхонь,
для яких шорсткість на кресленні не зазначена конструктором, на базовій довжині
(в даному випадку
базова довжина
визначається по
ГОСТ 2789-73).
Питання для самоконтролю
1.
Як умовно позначають відхилення
форми циліндричних
поверхонь?
2.
Як умовно позначають відхилення форми плоских поверхонь?
3. Як умовно позначають
відхилення розташування поверхонь?
4.
Як на кресленні проставляють відхилення форми i розташування
поверхонь?
5.
Що таке залежний i незалежний допуски розташування
поверхонь?
6.
Перечисліть рiвнi відносної геометричної точності.
7.
Що таке хвилястість поверхонь деталей?
8.
Що таке шорсткість поверхонь деталей?
9.
Як позначають шорсткість поверхонь на кресленні?
Рекомендована
література
1.
Грушецька М.Г.
Взаємозамінність, стандартизація та технічні вимірювання: Навчальний посібник.
– Луцьк: РВВ ЛДТУ, 2004. – 144с.
2.
Допуски и посадки:
Справочник. В 2х ч. / В.Д. Мягков, М.А. Палей, А.Б. Романов,
В.А. Брагинский. Ч.1. – Л.: Машиностроение, 1982. – 543с.
3.
Козловский Н.С.,
Виноградов А.Н. Основы стандартизации, допуски, посадки и технические
измерения. – М.: Машиностроение, 1982. – 286с.
4.
Козловский Н.С., Ключников В.М. Сборник
примеров и задач по курсу «Основы стандартизации, допуски, посадки и
технические измерения». Учебное пособие для учащихся техникумов. – М.:
Машиностроение, 1983. – 304с.
5.
Якушев А.И. Взаимозаменяемость, стандартизация и
технические измерения. – М.: Машиностроение, 1987. – 352с.