|
|
Тема 5. Компанування промислових будівель механообробних та складальних
виробництв |
Цілі та завдання вивчення теми:
Знання будівельної частини та вимог до промислових
будівель.
Знання класифікації промислових будівель.
Знання основних елементів та типових схем промислових будівель.
Знання планування будівлі цеху механоскладального виробництва.
Перелік основних питань теми
Будівельна частина промислових будівель
Вимоги до промислових будівель
Основні елементи промислових будівель
Типові схеми будівель
Планування будівлі цеху
5.1 Будівельна частина
промислових будівель
Промисловим підприємством
називають комплекс будівель,
споруд та
технологічних засобів
виробництва, які використовують для,
виробництва завершеної продукції або напівфабрикатів. Промислові
підприємства класифікують за
галузями виробництва, які є складовими
загальнодержавного та приватного
господарства країни. Галузева класифікація промислових підприємств є основою для створення
проектних, науково-дослідних і виробничих установ та закладів. Промислові будівлі – це будівлі, призначені
для розміщення промислових виробництв, та для забезпечення необхідних
виробничих та санітарно-гігієнічних умов для працюючих. Сукупність цих вимог визначає відповідний експлуатаційний
режим, який підтримують всередині
будівлі системи повітрообміну, опалення, освітлення, водопостачання і
енергопостачання, каналізації, шумопоглинання, пилевидалення тощо. З
цією ж метою промислові
будівлі оснащують підйомно-транспортними
засобами і обладнанням, системами
комунікацій, пристроями для
підтримки і кріплення технологічного обладнання,
машин тощо. Комплекс
вказаних інженерно-технологічних систем
і пристроїв разом із будівельною і конструктивною системою, об'ємно-планувальними параметрами і поверховістю будівлі
визначають її планувальне та просторово-композиційне рішення,
яке безпосередньо пов'язане з видом промислового виробництва, що
розміщується в ньому. Велика кількість галузей
промисловості та видів
виробництв обумовлює великий
діапазон різних за типами і видами промислових
будівель. Одна з основних
особливостей промислових виробництв усіх галузей
– їх постійне вдосконалення,
пов'язане з модернізацією технології та
частковою або повною заміною
обладнання. Іноді навіть має місце зміна галузі. Це явище досить поширене в
Україні і пов’язане з тим, що наявні підприємства значною мірою не пристосовані для
роботи в сучасних
умовах. Наприклад, багато
заводів були розраховані на
масове та багатосерійне
виробництво продукції, а сучасні
потреби ринку вимагають малосерійного або одиничного виробництва. Крім того,
необхідним є створення нових
виробництв і навіть
галузей промисловості, яких в
Україні не існувало. Значна частина витрат під час створення нового
промислового підприємства припадає саме на зведення промислових будівель.
Значно скоротити ці
витрати можливо за рахунок оренди
або придбання наявних виробничих будівель, які з тих чи інших причин не використовуються власниками за
призначенням. У зв'язку з цим останнім часом, отримав широке
застосування універсальний тип промислових будівель, придатних для розміщення різних виробництв однієї або
навіть декількох галузей промисловості. Замість побудови окремих будівель під
час проектування механоскладальних заводів доцільно використовувати блокування цехів в одному приміщенні. Це пов’язано з тим, що
будівництво кожного цеху окремо дорожче,
ніж побудова загального цеху для них. Транспортні витрати на перевезення
вантажів між цехами розміщеними в окремих будівлях теж значно зростають.
Виробничі, допоміжні цехи, а також склади, ремонтні служби доцільно розміщувати
в одному приміщенні. Основні складські приміщення матеріалів, що згорають, а
також готової продукції повинні бути зблоковані окремо на допустимій нормативно
протипожежній відстані від блоку виробничих та допоміжних цехів.
При
розгляді питання по блокуванню в одному приміщенні можна виділити такі основні
блоки цехів (рис. 5.1–5.2):
1. Механічні та складальні цехи для виробництва різних типів машин
і агрегатів, цехи та дільниці металопокриття, фарбування, термічні цехи, цехи
холодного штампування, допоміжні дільниці, склади, побутові приміщення.
2. Механічні, складальні та інші цехи холодної обробки, що
виготовляють деталі або вироби, які йдуть на загальне складання; допоміжні
дільниці, склади, побутові приміщення.
3. Інструментальний, ремонтно-механічний,
електроремонтний, заготівельний, експериментальний цехи, допоміжні дільниці,
склади, побутові приміщення.
4. Механічні,
складальні, заготівельний, інструментальний, ремонтно-механічний,
експериментальний цехи, допоміжні дільниці, склади, побутові приміщення.
|
Рис. 5.1. Схема загального компонування
в одному приміщенні механічного, складального,
інструментального, РМЦ для заводу серійного виробництва продукції |
|
|
а б в г |
Рис.
5.2. Компонувальні схеми
механоскладальних цехів: а, б –
розміщення цеху загального складання з конвеєром перпендикулярно до лінії обробки після
вузлового складання в кінці корпусу або в
його середині; в, г – розміщення відділення вузлового складання у прогоні
перпендикулярно або паралельно прогону або дільницям механічного цеху
5.2 Вимоги до промислових будівель
Функціональні вимоги – повна відповідність своєму призначенню,
тобто заданим параметрам розміщення в них технологічних процесів. Цим
вимогам повинні відповідати об'ємно-планувальні та
конструктивні рішення будівлі, її внутрішньоцехове
підйомно-транспортне обладнання, повітряне
середовище, світловий та шумовий режими виробничих приміщень. Об'ємно-планувальні та
конструктивні рішення повинні
бути гнучкими для можливості удосконалення технологічних процесів.
Технічні вимоги
– забезпечення міцності,
стійкості та довговічності
будівель, зниження пожежної та вибухової
небезпеки для працюючих, а також у можливість зведення
будівель індустріальними методами.
Архітектурно-художні вимоги
– промислові будівлі
повинні мати естетично виразний
та привабливий зовнішній
вигляд. Архітектуру будівель промислових підприємств необхідно
гармонійно пов’язувати із забудовою всього промислового комплексу та з
природним середовищем. Сучасні естетичні вимоги викликають необхідність
покращувати якість інтер'єрів
виробничих приміщень, яка
визначається їхньою архітектурно-планувальною організацією, системами освітлення,
характером оздоблення і якістю будівельних матеріалів, зовнішнім виглядом
технологічного обладнання.
Економічні вимоги
– забезпечення доцільних необхідних
витрат як на будівництво, так і на експлуатацію промислових будівель.
Для забезпечення оптимальної організації технологічного процесу необхідно
вибирати найбільш раціональні об’ємно-планувальні, конструктивні та архітектурно-композиційні рішення. На економічність будівель
впливають також скорочення
термінів будівництва, використання вітчизняних будівельних матеріалів
і конструкцій, зменшення витрат
на його експлуатацію.
Екологічні вимоги – забезпечуються
нормативними виробничо-технологічними процесами, розміщеними
в промислових будівлях.
Будь-який виробничий процес повинен
виключати або мінімізувати
забруднення повітряного і водного
басейнів, забезпечувати раціональне
використання природних
ресурсів і відходів
виробництва.
5.3 Класифікація промислових будівель
За
призначенням промислові будівлі та споруди поділяють на:
Ø виробничі, в яких розміщують основні
технологічні процеси підприємств
(мартенівські, прокатні, механоскладальні цехи тощо);
Ø підсобно-виробничі,
призначені для розміщення
допоміжних процесів
виробництва (ремонтні, інструментальні, механічні,
тарні цехи тощо);
Ø енергетичні, в яких розміщують
обладнання для забезпечення
електроенергією, стиснутим
повітрям, парою, газом
(ТЕЦ, компресорні, газогенераторні та повітродувні станції тощо);
Ø транспортні, призначені для розміщення
і обслуговування транспортних засобів
(гаражі, депо тощо);
Ø складські, необхідні
для зберігання сировини,
напівфабрикатів, готової
продукції, пального тощо;
Ø санітарно-технічні, призначені для
обслуговування мереж водопостачання і
каналізації, для захисту
навколишнього середовища від
забруднення (станції очищення,
насосні, водонапірні станції тощо);
Ø адміністративні та побутові, призначені
для розміщення адміністративних, побутових
(громадське харчування, гардеробні,
душові тощо) і
медичних приміщень.
До
спеціальних споруд промислових
підприємств відносять резервуари, градирні, димові
труби, естакади, опори тощо.
Перелічені групи
будівель та споруд
не обов'язково будують
на кожному промисловому
підприємстві, їх наявність залежить від призначення та потужності підприємств.
За вибухопожежною і пожежною небезпекою приміщення
і будівлі поділяють на категорії А,
Б, В1...В4, Г
і Д, які
визначаються характеристикою
речовин і матеріалів у приміщеннях. Категорії А і Б є найбільш вибухопожежонебезпечними. В приміщеннях цих категорій наявні
горючі гази, речовини
і матеріали, здатні
до вибуху при нагріванні або взаємодії з водою, киснем, один з одним.
Категорії В1...В4 є пожежонебезпечними. Приміщення категорії
Г пов'язані з
наявністю в них
негорючих речовин і матеріалів
у гарячій, розпеченій
або розплавленій стадії,
процес обробки яких супроводжується виділенням променевого
тепла, іскор і полум'я. При наявності в приміщеннях горючих
газів, сумішей і
матеріалів припускається їх
спалювання або утилізація в тверді речовини. Категорія Д
пов'язана з наявністю
в приміщенні негорючих
речовин і матеріалів у холодному
стані.
За об'ємно-планувальними та
архітектурно-конструктивними ознаками промислові будівлі поділяють:
· за кількістю поверхів – на
одноповерхові, двоповерхові, багатоповерхові та
змішаної поверховості. В
одноповерхових будівлях, як
правило, розміщують
виробництва металургійної та
машинобудівної промисловості, для
яких характерне розміщення важкого
і громіздкого технологічного обладнання з передачею
навантажень на самостійні фундаменти. В багатоповерхових будівлях розміщують
машинобудівні, приладобудівні виробництва які не потребують розміщення на
верхніх поверхах важкого та громіздкого
обладнання (навантаження на
перекриття не перевищують 30…45 кН/м2).
· за кількістю
прогонів – на однопрогонні (у тому
числі будівлі павільйонного типу)
і багатопрогонні (у
тому числі будівлі суцільної
забудови). Прогон – це
відстань між координатними
осями вертикальних несучих опор, на які
спираються горизонтальні несучі конструктивні
елементи; у залежності від величини прогонів: малопрогонні – 6, 9 і 12м; середньопрогонні
–18, 24, 30 і 36 м; великопрогонні –
понад 36 м; (в будівлях
з металевим каркасом ширина
прогону може бути довільною).
· за наявністю
підйомно-транспортного обладнання
– на безкранові та кранові з мостовими або підвісними
кранами;
· за конструктивними схемами
покриття – на
каркасні: площинні
безрозпірні (покриття по
балках або фермах);
площинні розпірні (покриття
по рамах або арках);
просторові безрозпірні (з
перехресно-ребристими або перехресно-стрижньовими покриттями);
просторові розпірні (оболонки,
висячі, пневматичні покриття);
· за матеріалом основних несучих конструкцій:
із залізобетонним збірним, збірно-монолітним або монолітним каркасом; з
металевим каркасом; з цегляними несучими
стінами і покриттями
по залізобетонних, металевих
або дерев'яних конструкціях;
· за системами
опалення: промислові будівлі,
які опалюються (у
тому числі з повітряною,
центральною і місцевою
системами опалення) і
які не опалюються –
"гарячі" (для цехів із великими
надлишковими тепловиділеннями) та
"холодні" (склади, навіси сховища);
· за системою
освітлення: із штучним
освітленням (за відсутності світлопрозорих конструкцій
у стінах і
в покриттях) і
природним, у тому
числі комбінованим (за наявності віконних прорізів, ліхтарів, світлових
ковпаків тощо);
· за системами
повітрообміну: з природною вентиляцією
через отвори в огороджувальних конструкціях;
з примусово-приливною вентиляцією
з допомогою вентиляторів і повітроводів; з кондиціонуванням повітря (в
тому числі з герметизацією внутрішніх приміщень);
· за спеціальними
вимогами: будівлі-агрегати (для цехів з особливо складним і громіздким технологічним
обладнанням), напіввідкриті установки (для обладнання, яке установлюють за
межами будівлі, але яке потребує влаштування навісів, кожухів тощо), радіаційні
(для виробництв із високим ступенем радіації), будівлі для вибухопожежних
виробництв тощо.
5.4 Основні елементи
промислових будівель
Фундамент – підземна частина будівлі,
яка передає навантаження від надземної частини на основу. Основа частина
ґрунту, яка приймає вагу всієї будівлі. Підошва фундаменту – поверхня
фундаменту, що безпосередньо передає навантаження на основу. Для виготовлення
фундаментів використовують різні матеріали: залізобетон, бутобетон, збірного
залізобетону і т.д. Фундаменти під залізобетонні колони
промислових будівель, які є основними несучими елементами каркасної будівлі,
роблять у вигляді окремо стовпів ступінчатої форми виготовлених переважно із
залізобетону або збірного залізобетону.
Фундаменти під металорізальні верстати встановлюють безпосередньо на підлогу; на окремих або загальних для декількох верстатів фундаментах. Безпосередньо на підлозі встановлюють легкі та середні верстати
нормальної точності, верстати, що мають вагу до 7 т встановлюють на бетонну
підлогу. Для встановлення верстату на підлозі без фундаментів передбачається
бетонна підлога товщиною 150…200мм. Легкі верстати масою до 2 т із
зрівноваженим і спокійним ходом можна встановлювати безпосередньо на торцеве
покриття бетонної підлоги (торцева шашка товщиною 60…100мм при бетонній
підготовці в 100мм). На стрічкових фундаментах встановлюють верстати до 30т. На
спеціально спроектовані фундаменти встановлюють верстати: із нежорсткими станинами співвідношення
(l– довжина верстату, h – висота перерізу станини); збірними станинами, в яких необхідна
жорсткість забезпечується за рахунок фундаментів; високоточні верстати.
Глибину фундаментів встановлюють на плані
цеху під час видачі будівельного
завдання, а потім цю величину уточнюють в будівельній частині залежно від ґрунтових умов. Для
індивідуальних фундаментів верстатів нормальної та підвищеної точності масою до
30 т висоту фундаменту приймають, в залежності від l –
довжини фундаменту, таку:
|
Токарні, поздовжньо-стругальні,
поздовжньо-фрезерувальні |
|
|
Шліфувальні |
|
|
Зуборізні, карусельні,
вертикально-фрезерні, карусельно-фрезерні, напівавтомати, токарно-розточні, консольно та без консольно-фрезерні |
|
|
Вертикально та
радіально-свердлильні |
|
|
Поперечно-стругальні,
довбальні |
|
При видачі завдання на проектування
фундаментів під обладнання необхідно враховувати можливість встановлення його
не на звичайні фундаменти, а на віброізолюючих опорах
або ковбиках. Резино-металеві опори та
резинові віброізолюючі коврики
дозволяють здійснювати безфундаментне встановлення
обладнання багатьох типів. Опори представляють собою поєднання стальних деталей
із шарами резини, фетру тощо. Верстати встановлюють на підлозі цеху на віброізолюючих опорах, які використовуються для верстатів
високої точності в цілях їх ізоляції від вібрацій та ударів. На таких опорах
встановлюють також верстати нормальної точності, коли їх робота пов’язана із
частими перестановками. На опори можна встановлювати шліфувальні, координатно-розточні, токарні верстати, на яких не
передбачається обробка важких та неврівноважених деталей, а також
фрезерувальні, копірувально-фрезерні і зубофрезерні
верстати. Віброізолюючі коврики
призначені для встановлення під залізобетонні фундаментні блоки, які
використовуються для високоточних верстатів із недостатньо жорсткими
верстатами, а також для верстатів, які мають тяжкі вузли, що поступально
рухаються. Орієнтовна довговічність опор 10 років, фундаментів на ковриках – 15 років. Необхідність використання віброопор вказується у специфікації на обладнання.
При
укрупнених розрахунках висоту фундаментів приймають: для верстатів до 10т –
0,6м; для верстатів від 10…12т – 1,0м; для більш тяжких верстатів – 1,5…2,0м.
Фундаменти під обладнання не повинні бути зв’язані із фундаментами будівлі.
Стіна – це вертикальний або нахилений під кутом конструктивний
елемент: за розташуванням у
плані вона може
бути зовнішньою і
внутрішньою; за статичною
функцією – несучою, самонесучою і
навісною. Несуча стіна сприймає вертикальні
та горизонтальні навантаження
від конструкцій покриття, перекриттів, сходів
і передає їх
на фундамент. Самонесуча
стіна спирається на фундамент і передає йому вертикальні
навантаження тільки від своєї власної ваги. Навісна стіна
складається з окремих елементів, що кріпляться до несучих
вертикальних або горизонтальних конструкцій будівель. Саме такі стіни
найчастіше використовуються у сучасних виробничих будівлях. В якості навісних
елементів використовуються або
залізобетонні або тришарові
сандвіч-панелі з мінеральної палити
та двобічного личкування
зі сталевого, рідше
алюмінієвого, листа. Несучі
зовнішні стіни роблять із червоної або силікатної цегли чи бетонного каменю.
Товщина стін залежно від кліматичних
умов виконується:
·
для І-го кліматичного поясу (північної зони) 2,5 цегли – 64см;
·
для ІІ-го кліматичного поясу (середньої зони) 1,5 (2) цегли –
38см (51см);
·
для ІІІ-го кліматичного поясу (південної зони) 1,5 цегли – 38см.
Каркас – скелет будівлі або споруди;
стрижньова несуча система, що сприймає
навантаження та впливи
і забезпечує міцність
і стійкість будівлі
або споруди.
Перекриття – горизонтальна
або інколи похила
конструкція, що розділяє внутрішній
об'єм будівлі на поверхи. В залежності від розташування розрізняють перекриття:
міжповерхові, що розділяють суміжні за висотою поверхи; горищні, що відділяють
приміщення верхнього поверху
від горища; надпідвальні,
що відділяють приміщення першого поверху від підвалу. Плити перекриття служать
для перекриття будівлі.
|
Рис. 5.3 |
Вони є несучими елементами будівлі і мають два повздовжніх
ребра (рис. 5.3). При кроці ферми 6 м довжина плити l=5950…5970мм; при кроці 12м l=11960мм. Ширина плит а
=1480…2980 мм, висота плити в =300…450 мм. |
Підлога залежать від функціонального призначення і характеру приміщень.
Підлоги повинні бути міцними і довговічними, тобто добре чинити опір
стиранню, зминанню або
удару; жорсткими, не ковзкими
та безшумними під час ходіння
та їзді транспортних
засобів; гігієнічними –
легко очищуватись від пилу та бруду; естетичними – гармонійно поєднуватись
з композиційним рішенням інтер’єру; зручними в експлуатації – не утворювати пилу, легко
ремонтуватись; економічними –
мати мінімальні показники собівартості, трудомісткості та
максимальний термін експлуатації. У деяких випадках до підлог висувають
спеціальні вимоги: вологостійкість і водонепроникність –
для санітарно-технічних приміщень;
високий ступінь
вогнестійкості та підвищений
опір стиранню – для приміщень
з інтенсивним рухом людей (вестибюлі,
холи, сходові клітки); еластичність і
безшумність – для приміщень лікувальних закладів;
стійкість до хімічно
агресивних речовин – для приміщень промислових підприємств; мати
низький коефіцієнт теплозасвоєння – для підлог
промислових цехів. В промисловому будівництві
використовують більше 80-ти типів покриттів підлог. У залежності від матеріалу
покриття розрізняють підлоги:
безшовні із суцільним покриттям,
із штучних, із рулонних та із листових матеріалів. Безшовні підлоги
виготовляють із бетону та бетону з
різними домішками, асфальтобетону, цементно-піщаного розчину, полімерів тощо. Підлоги з покриттям
із штучних матеріалів є більш
трудомісткими. Для влаштування таких підлог використовують залізобетонні
та металеві плити,
керамічні та пластмасові плитки, цеглу, камінь тощо.
Підлоги із суцільним
покриттям найбільше
застосовуються в промислових будівлях. Порівняно з конструкціями
підлог із штучних
матеріалів вони більш технологічні (краще піддаються
механізації облаштування) і в багатьох випадках економічніші.
Найчастіше у виробничих приміщеннях цехів машинобудівних заводів використовуються бетонні
та металеві підлоги. В
разі необхідності використовують
також полімерцементні (наливні) підлоги, підлоги з
жаростійких бетонів, полімерні наливні,
брущаті кам’яні, з
комплексних бетонних плит, підлоги
з торцевих дерев’яних
шашок. У побутових
приміщеннях найчастіше
використовують плиточні підлоги
або підлоги з рулонних матеріалів (лінолеум). В
адміністративних приміщеннях використовуються
бетонні, дерев’яні, в
тому числі паркетні, ламіновані,
з рулонних матеріалів.
Покриття – верхня зовнішня огороджувальна
конструкція, призначена для ізоляції та захисту внутрішнього простору будівлі
від атмосферних опадів, вітру, негативних температур та сонячного перегріву і складається
з даху та горищного перекриття.
Покриття можуть бути
плоскими (горизонтальними і
похилими), багатогранними і криволінійними та по прогонах (для невеликих будівель, рис. 5.4) і без прогонів (більш
економічні і розповсюджені, рис. 5.5).
Дах
– вид покриття
у вигляді надбудови
над перекриттям останнього поверху. Він складається з однієї
або кількох похилих площин, що утворюють над
верхнім перекриттям горище.
Несуча частина даху
складається з кроквяної системи, що
влаштовується із дерев'яних,
металевих або залізобетонних конструкцій (крокв,
прогонів, стояків, підкосів
тощо) та покрівлі (азбестоцементної, металевої,
черепичної, ґонтової тощо).
|
Рис.5.4. Конструкція перекриття
по прогонах:1-плити; 2- прогони; 3- несуча конструкція |
Рис.5.5. Конструкція перекриття
без прогонів: 1-плити; 2- несуча конструкція |
Перегородка –
внутрішня вертикальна огороджувальна конструкція,
що служить для розділення
суміжних приміщень. Вона спирається
на міжповерхові перекриття
або на підлогу
перших поверхів. Виконується
з цегли та
інших штучних будівельних матеріалів,
гіпсокартону, скла, органічного
скла, склоблоків, металу, залізобетону
та інших матеріалів
в залежності від призначення.
Сходи
– нахилені східчасті
конструктивні елементи, призначені
для пересування людей між поверхами або приміщеннями, розташованими на
різних рівнях. Для захисту
від вогню та
задимлення сходи ізолюють
від інших приміщень вогнестійкими
вертикальними стінами. Такі
стіни, простір, відгороджений ними,
та розташовані в
ньому сходи і
площадки називають сходовою кліткою. Сумарна ширина східцевих
маршів залежно від кількості людей, що є
на найбільш заселеному поверсі приймають із розрахунку 0,6м на 100 чоловік.
Ширина маршу східців не більше 2,4м. В кожному марші встановлюють не менше 5 і
не більше 18 сходинок. Ширина східцевої клітки 2,4м;
2,8м; 3,2 м. Довжина – 5,6м; 6,0м; 6,8м. Ширина маршу – 1,25м. Об'ємно-планувальний
елемент будівлі, що включає
сходову клітку, шахти ліфтів та
обслуговуючі їх площадки, називають сходово-ліфтовим вузлом.
Ліфт – стаціонарний підйомник із
кабіною або платформою, що рухається по жорстких напрямних. У сучасних будівлях
та спорудах експлуатують, як правило, ліфти з
електричною тягою періодичної
дії, у яких
закрита кабіна переміщується в
закритій шахті, а
відкривання дверей синхронізоване із зупинками на певних рівнях (поверхах).
Основні елементи: лебідка, кабіна, шахта, напрямні, противага.
Вікно
– світлопрозоре заповнення
прорізу в зовнішніх
стінах будівель, призначене для
природного освітлення, інсоляції
та вентиляції приміщень. Заповнюються віконними
блоками, які складаються
з віконної коробки і засклених віконних рам. На сьогодні
найефективнішими є металопластикові вікна з дво або
трикамерними склопакетами. В
особливо холодному кліматі використовуються чотирикамерні
склопакети. Для вибухонебезпечних виробництв застосовують лише вікна з одинарним
склом. В цегляних загородженнях вікна повинні бути шириною 200, 250, 400см дерев’яні
чи пластикові. В панельних або блочних шириною від 200 до 600см металеві чи пластикові.
Ліхтар – засклений проріз у
покрівлі будівлі. Найчастіше – це надбудова над
покрівлею будівлі, призначена
для природного освітлення
і природної вентиляції (аерації)
приміщень. За формою
поперечного перерізу може
бути трикутним, прямокутним, зубчастим, трапецієподібним та М-подібна
(рис.5.6).
|
Рис. 5.6. Види ліхтарів |
На ліхтарях передбачається відвід води. Прорізи світлових ліхтарів
заповнюють глухими або
такими, що відчиняються, заскленими рамами. В аераційних
ліхтарях виконують глухі
або регульовані жалюзі чи
стулки. Світлові та
аераційні ліхтарі широко використовують при будівництві
машинобудівних цехів. |
Зенітні
ліхтарі – це світлопрозорі ковпаки або
ілюмінатори різної форми,
зорієнтовані на небозвід, закріплені до конструкцій покриття,
їх розміщують групами
чи рядами над
окремими приміщеннями або ділянками будівель. Ліхтарі застосовуються шириною 6 м для
прогонів шириною 12 м і 18 м та шириною 12 м для прогонів шириною 24 та 30 м і
більше.
Двері – проріз у стінах будівлі,
призначений для проходу, що з'єднує окремі приміщення або
внутрішній і зовнішній простір будівлі (рис.5.7).
|
а
б |
|
|
в |
г |
Рис. 5.7. Варіанти дверей промислових будівель: а
– внутрішні одинарні двері; б – внутрішні двійні
двері; в – зовнішні двійні двері; г –
скляні двері
Заповнюють дверним блоком, що
складається з дверної
коробки, до якої
на завісах кріплять
дверні полотна. Двері встановлюються за
умовами пожежної безпеки. Відстань
від найбільш віддаленого робочого місця до виходу назовні або на сходову
клітку для одноповерхових будинків
50…100м, для багатоповерхових 30…75 м. Сумарна ширина дверей, коридорів
або проходів на шляхах
евакуації приймається з
розрахунку не менше
0,6 м на 100
чоловік. Гранична ширина проходів не менш 1 м, коридорів 1,4 м, дверей
0.8…2.4 м×2 м, маршів і площадок
східців 1,15…2,4 м. Відкриваються двері в напрямку виходу з будівлі. Кількість
виходів повинна бути не менш двох. По вертикалі двері висотою: 2,1м або 2,5м.
Ширина дверей – 2м.
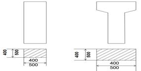
Колони – залежать від ширини прогонів,
вантажопідйомності кранів і кроку колон.
Крок – відстань між осями розбивання в
плані будівлі. Залежно від домінуючого в плані напряму крок може бути повздовжнім
або поперечним. Прив’язку колон крайніх рядів і зовнішніх стін до повздовжніх
осей розбивання проводять згідно з будівельними нормами таким чином:
-
зовнішні грані колон і внутрішні поверхні стін суміщають із повздовжніми осями
розбивання в будівлях без мостових кранів при кроці колон 6м або 12м і в
будівлях, що обладнанні мостовими кранами до 30т, при кроці колон 6м і висоті від підлоги до низу несучих
конструкцій перекриття менше 16,2м (рис. 5.8, а,б);
-
зовнішні грані колон і внутрішні поверхні стін зміщують з
повздовжніх осей розбивки на 250мм в будівлях, які обладнанні мостовими кранами
до 50т включно, при кроці колони 6м і висоті від рівня підлоги до низу несучої
конструкції покриття 16,2м і 18м, а також при кроці колони 12м і висоті 8,4…18м
(рис. 5.8, в).

Рис. 5.8. Прив'язка колон і стін до поздовжніх осей
розмітки в будівлях:
а–без
мостових кранів; б – з мостовими кранами до 30т; в – з мостовими
кранами до 50т
Розміри перерізу залізобетонних колон повинні бути не
менше 30×30см. В більшості випадків вони
становлять 400×400мм, 500×500мм, 600×600мм (рис.5.9).
Для кранів з вантажопідйомністю 100т і більше
– 500мм (рис.5.10).
|
а б Рис. 5.9.
Колони для без кранового цеху: а – колони крайніх
рядів; б – колони
середніх рядів а б Рис. 5.10. Колони для цеху з кранами: а – колони крайніх
рядів; б
– колони основних рядів |
Розміри для колони квадратного перерізу, що не несуть кранових
навантажень для дерев’яних перекриттів |
Ворота – призначені для захисту приміщень у холодний час року у
воротах ставлять тамбури з обігрівачами різних типів (рис. 5.11).
|
а б |
в
г д |
Рис.
5.11. Ворота промислових будівель: а –
ворота, що розчиняються;
б
– розсувні; в – складчасті; г – під’ємні; д – шторні
Розміри проємів
для воріт промислових будівель уніфіковані і складають: 2,4×2,4м;
3×3м; 3,6×3м тощо. Розміри повинні бути кратними 600мм. Найменша ширина воріт не менше 1,8м і
має перевищувати найбільшу ширину транспортних засобів не менше ніж на 600мм.
Висота воріт для безрейкового транспорту не менше 2,4м і повинна перевищувати
висоту транспортних засобів не менше ніж на 200мм. Глибина і ширина
тамбурів визначаються транспортними
засобами. Розсувні двері у машинобудівних цехах майже не
використовуються з міркувань безпеки
людей у разі
вибуху всередині приміщення
або евакуації людей
в разі пожежі.
Підкранові балки – конструкції, якими пересуваються
мостові підйомні крани, що обслуговують
виробничі приміщення.
|
а б Рис. 5.12. Підкранові
балки: а – таврова балка; б –
двотаврова балка |
Опорами
підкранових балок служать колони. Мостові крани пересуваються по рейках, які
вкладені на верхній пояс балки. Балки використовуються таврові та двотаврові. Ферми бувають стропильні та під
стропильні. |
Стропильні
служать для підтримання прогонів і сприйняття діючих на них навантажень. Ферми
бувають залізобетонні та металеві. Сегментні ферми використовують для скатних
покрівель. З паралельними поясами для плоских покрівель (рис. 5.13). Основними
розмірами ферми є її прогін (ширина прогону будівлі) і висота. Прогони
уніфіковані і приймаються кратними 6м. Металічні ферми використовуються для
ковальсько-пресових, ливарних цехів за наявності
мостових кранів Q= 20т і більше, ширині прогонів більше 24м. Для ширини прогону
30м мінімальна висота 2200мм, максимальна – 3450мм, для ширини прогону 36м
відповідно – 2200мм і 3700мм. (рис. 5.14).
|
а
б Рис. 5.13 Залізобетоні ферми: а – для
скатних; б – для плоских покрівель |
а
б Рис. 5.14. Металеві ферми: а – для
скатних; б – для плоских покрівель |
Площадка – одноярусна споруда, розміщена в будівлі або поза нею, що
спирається на обладнання, самостійні опори або конструкції будівлі.
Етажерка – двоярусна або багатоярусна
споруда, що розміщена в будівлі або поза нею.
Антресолі – площадка в середині будівлі, що не використовується для
облаштування допоміжних, складських та
інших приміщень.
Галерея – повністю надземна або
частково закрита горизонтальна чи з
нахилом протяжна споруда, що з’єднує
приміщення будівлі.
Естакада – надземна відкрита горизонтальна чи з нахилом протяжна
споруда, яка складається з ряду опор, що розташовуються в будівлі або поза нею. Може бути з дахом або без нього.
Тунель (колектор) – підземна закрита
горизонтальна або з нахилом протяжна споруда висотою не менше 1,8м до
конструкцій, що виступають.
Канал – підземна закрита горизонтальна або з нахилом протяжна
споруда висотою до 1,8м до конструкцій, що виступають.
Тамбур-шлюз – тамбур, обладнаний спеціальними пристроями, які не допускають
проникнення вогню, газів тощо із одного приміщення в інше.
Опадовий шов – необхідний для побудови
будівлі на неоднорідних ґрунтах коли виникає небезпека появи тріщини на границі ґрунтів. Для попередження цього на стику ґрунтів
роблять опадовий шов, який розділяє будівлю на частини, які незалежно
одна від одної переміщуються у вертикальних площинах.
Температурний шов – попереджає
появу температурних напруг. Температурні шви
передбачають вільне горизонтальне переміщення суміжних частин будівлі. Вони можуть бути повздовжні та поперечні.
Відстань між температурними швами для будівель, що опалюються, із збірних
каркасних конструкцій – 60м, для тих, що не опалюються – 40м, якщо будівля із стальним каркасом,
відповідно, до 120…150м і до 90м.
5.5 Типові схеми будівель
Для організації механоскладального
виробництва використовуються одноповерхові будівлі. У випадках, коли для виробництва
потрібно обладнання легкої серії, а також при обмеженій території заводу
доцільно використовувати багатоповерхові будівлі. Промислові будівлі складаються із
залізобетонних та металевих конструкцій. Будівлі та їх будівельні елементи
уніфіковані (для кранів вантажопідйомністю до 50 т включно). В габаритних
схемах уніфіковані ширина прогону, вантажопідйомність кранів, крок колон і
висота до підкранових шляхів. При виборі
уніфікованої схеми корпусу необхідно мати на увазі, що ширина (або число прогонів)
і довжина корпусу не регламентуються. У сучасному проектуванні механічні та
складальні цехи рідко розміщують в окремих корпусах.
Зазвичай механічні цехи об’єднують в одному корпусі із складальними, фарбувальними,
заготівельними, зварювальними, інструментальними, ремонтними, термічними,
гальванічними. Необхідно зауважити, що
не допускається об’єднувати в одному корпусі механічні цехи з ливарними,
кувальними і кувально-пресовими, які належать до
групи заготівельних цехів.
Для цехів машинобудівного виробництва одноповерхові будівлі
компонуються з основних і додаткових секцій. Основні мають розміри в плані
144×72м і 72×72м. Сітки колон 24×12м, 18×12м. Ширина
прогонів 24м, 18м. Крок колони 12м. Висота будівель: для будівель без кранів
або з рухомим підйомно-транспортним обладнанням
вантажопідйомністю до 5т включно – 6м і 7,2м до кінця несучої конструкції
покриття; для будівель з електричними мостовими кранами вантажопідйомністю до
30т – 10,8м і 16,2м. Додаткові секції
для поперечних прогонів:
-
при вантажопідйомності до 30т мають розміри в плані 24×72м
і 48×72м; висота від підлоги до кінця несучих конструкцій покриття –
10,8м і 16,2м.
-
при вантажопідйомності до 50т мають розміри в плані
30×72м; висота від підлоги до кінця несучих конструкцій покриття – 16,2м і 18м.
-
|
а |
|
б |
|
в |
Рис. 5.15. Конструктивні
схеми та поперечний
розріз прогонів
одноповерхових виробничих
будівель: а–
кранові прогони; б–
без кранові прогони
– без ліхтарний
та зі світло аераційним ліхтарем; в– без кранові
прогони з плоскою покрівлею та світловими плафонами (зенітними ліхтарями)
1 – панелі стін (бетонні або сандвіч-панелі); 2 – колони (залізобетонні або металеві) 3 – стропильні
ферми; 4 – плити покриттів; 5 – сталева рама ліхтаря; 6 – підкранова балка;
7 – підстропільні ферми;
8 – фундамент;
9– фундаментна балка; 10 – місця
для встановлення світлових плафонів
Металеві конструкції використовуються для
будівель з великими прогонами і кранами
значної вантажопідйомності.
Залізобетонна конструкція складається із залізобетонних колон, які
зв’язують рейки, балки, підкранові елементи будівель несучих складальних конструкцій для покрить.
Стіни використовують панельні висотою 1,2м і 1,8м;
цегляні для будівель порівняно невеликих об’ємів (до 5000м3).
5.6 Планування будівлі цеху
Одним із видів
креслення графічної інформації, що забезпечує наглядне уявлення про будівлю є
план і розріз будівлі.
Планом – називається розріз будівлі в горизонтальній площині по віконних та дверних прорізах. На плані будівлі показують
розміщення обладнання, робочих місць, транспортного обладнання, вказівки із
підводу комунікацій до верстатів тощо. Для виявлення конструкції будівлі,
висоти поверхів, відміток рівня підлоги, площадок, вікон та інших даних служать
розрізи будівель, які отримують за допомогою вертикальних січних площин. Плани будівель викреслюють в такій послідовності:
1. Наносять штрих-пунктирною лінією осі розбивання будівлі за
заданими розмірами і в прийнятому масштабі.
2.
На перетині осей розбивки наносять розміщення колон.
3. Тонкими суцільними лініями викреслюють зовнішні та внутрішні
стіни будівлі та перегородки по заданим розмірам.
4.
Намічають розбивку віконних та дверних прорізів.
5. Намічають розміщення обладнання, транспортних засобів, робочих
місць.
Розрізи
будівлі починають із нанесення вертикальних осей розбивання зовнішніх та
внутрішніх стін і колон. Відстань між осями розбивання беруть із плану будівлі
в площині розрізу. Далі проводять знизу горизонтальну лінію, перпендикулярно
осям розбивання, приймають її за рівень чистої підлоги першого поверху і
відкладають уверх від неї на одній із осей розбивки висоту цеху. Через отримані
точки проводять горизонтальні прямі між крайніми осями розбивки. Наносять також
горизонтальну або похилу пряму лінію, що визначає рівень землі в площині
розрізу. Потім тонкими лініями
викреслюють товщину зовнішніх та внутрішніх стін та колон. Позначення осей
розбивання проставляють в кружках по осях нижче фундаменту. Розміри між
суміжними осями розбивання проставляють також внизу. Намічають віконні і дверні
прорізи. На розрізах показують умовні відмітки висоти конструктивних елементів
будівлі і висоти віконних і дверних прорізів. Будівлі та споруди в плані
розбиваються осьовим лініями на ряд елементів. Ці осі, що визначають розміщення
основних несучих конструкцій (стіни і колони), називаються осями розбивання повздовжніми та поперечними.
Осі розбивання наносять штрих-пунктирними лінями і
позначають кружками діаметром 8мм (для креслень у масштабі до 1:400) і діаметром 6мм (для менших масштабів).
Для
позначення осей розбивання використовують арабські цифри і прописні букви української абетки, за
виключенням З,Й,О,Х,Ц,Щ,Ш,Ч,І,Ь.
Цифрами
позначаються осі по стороні будівлі з найбільшою
кількістю осей розбивання. Послідовність позначення – зліва на право і знизу
вверх. Позначення осей, як правило, розміщують по лівій та нижній стороні плану
будівлі. В каркасних будівлях осі розбивання (повздовжні та поперечні)
проходять через геометричні центри стінної колони внутрішніх рядів.
Розміри
на будівельних кресленнях наносять у вигляді замкненого ланцюга. Допускається
розміри повторювати. Розмірні лінії мають виходити за крайні виносні лінії на
1…3мм. Замість стрілок на розмірних лініях допускається проставляти стяжки
у вигляді короткої лінії під кутом 450 до розмірної лінії або
точки. За наявності в зображені декількох однакових елементів, розміщених на
однаковій відстані один від одного (наприклад, осей колон) розміри між такими
елементами проставляють тільки на початку і в кінці ряду або вказують відстань
між крайніми елементами. Розміри на будівельних кресленнях проставляють в мм
без позначення одиниці вимірювання. Допускається проставляти розміри в см
або м
із позначенням одиниці вимірювання або без них, але із вказуванням їх у
технічних вимогах.
|
Рис. 5.16 |
Відмітки рівня висот, глибин елементів будівлі або конструкції
від прийнятого відносного рівня (нульового), розміщують на виносних лініях і позначають
знаком рівностороннього трикутника із зачорненою правою половиною, який
спирається вершиною на виносну лінію рівня відповідної поверхні. Відмітки
вказують у метрах. Умовно нульову відмітку позначають „0,000”, відмітки нижче
умовної нульової відмітки позначаються із знаком „мінус”, вище – без
знаку. В якості нульової відмітки приймається, як правило, рівень підлоги
першого поверху (рис.5.16). |
|
|
Контрольні питання: |
1. Назвіть основні
конструктивні елементи будівлі.
2. Назвіть основні будівельні
параметри виробничих будівель і чинники, що впливають на їх вибір.
3. Як класифікуються промислові
будівлі за призначенням?
4. Назвіть основні елементи
промислових будівель.
5. Дайте характеристику типових
схем промислових будівель.
6. Що таке план і розріз
будівлі?
7. Як класифікуються промислові
будівлі за об'ємно-планувальними та
архітектурно-конструктивними ознаками?
8. Перелічіть вимоги до
промислових будівель.
9. Які основні блоки цехів
можна блокувати в одному приміщенні?
10. Класифікація промислових будівель за вибухопожежною і пожежною безпекою.