Тема. Технологічне планування. Проектування організації робочих місць
|
Лабораторна робота № 5 Розробка технологічного планування дільниці |
|
Мета — навчитися розробляти технологічний
план дільниці.
Короткі теоретичні відомості
Технологічне планування
є основним документом розробки дільниці. Воно повинне містити розміщення всього
виробничого, допоміжного і підйомно-транспортного
обладнання, стелажі, робочі місця слюсарів, ВТК. При розміщенні обладнання
необхідно дотримуватися максимальної поточності виробництва. Обладнання
необхідно розміщувати із максимальною економією виробничих площ. В той же час
повинні бути забезпечені мінімальні проїзди.
Під час розміщення
обладнання необхідно керуватися нормами відстаней:
- між верстатами й елементами
будівлі та колон;
- між верстатами в поперечному та повздовжньому напрямках;
- розмірами проходів та проїздів;
- розміщенням обладнання при багатоверстатному обслуговуванні.
Планування дільниці
розпочинають із нанесення колон (стін) будівлі, потім необхідно розміщувати темплети обладнання. Після того наносять зображення робочих місць,
підйомно-транспортних засобів, позначають
магістральні і виробничі проїзди, проставляють розміри і поперечному та
повздовжньому напрямах. Рекомендована
довжина технологічної лінії 40…50м. При більшій довжині можливе розміщення
обладнання в декілька рядів або зигзагоподібно. Якщо
неперервність технологічного процесу на лінії порушується, наприклад,
операціями термічної обробки, то передбачається поперечний прохід або проїзд на
площадку для зберігання напівфабрикатів. Обладнання, робочі місця, складські
приміщення і контрольні площадки, вантажопідйомні і транспортні пристрої, які
зображені на плані, позначають номерами, які вносять до специфікації, розміщеної
над кутовим штампом креслення. На плані вказуються назви дільниць. Стрілками
позначають напрямок переміщення вантажопотоку із заходом на верстат, де
виконується операція.
На кресленні планування
дільниці умовно позначають місця
робітника у вигляді круга діаметром 4…5
мм (для М1:100), половина круга затемнена, світла частинка повернута до
обладнання. Біля обладнання, робочих місць контролерів зображають умовні
позначення підводу електроенергії, води, стиснутого повітря.
Технологічне обладнання необхідно
розміщувати так, щоб у цеху залишались необхідні по довжині й ширині проходи, а
також площадки для його обслуговування і проходи до нього (табл. 5.1).
Таблиця 5.1 - Найменші віддалі між верстатами, мм
|
Види верстатів |
Найменша віддаль між верстатами |
||
|
малі |
середні |
крупні |
|
|
Токарні,
револьверні, патронні, горизонтальні токарні автомати і автомати для штучних
робіт |
400 |
500…600 |
600…700 |
|
Вертикальні,
багатошпиндельні токарні напівавтомати, карусель-но-токарні,
вертикаль-но-розточувальні, вертикально - протяжні |
- |
600…700 |
900…1000 |
|
Вертикально
– свердлильні |
400 |
500 |
500 |
|
Горизонтально
- і вертикально - фрезерні |
400 |
500 |
600 |
|
Поперечно-стругальні |
400 |
600 |
- |
|
Поздовжньо-фрезерні,
поздовжньо-стругальні, плоскошліфувальні двох стоякові |
- |
700 |
800…900 |
|
Зубофрезерні,
зубостругальні, зубодовбальні |
400..500 |
500…600 |
700…800 |
|
Кругло
- і внутрішньо - шліфувальні, плоскошліфувальні |
400 |
800 |
700 |
Ширина основних проходів у
цеху повинна бути не менш як 2,5…3 м; відстань між частинами обладнання, що
виступають, – 0,8…1,0 м; а в місцях, де не передбачено рух робітників, – 0,5 м;
при фронтальному розміщенні верстатів один до одного – не менш як 1,5 м. Якщо
тару і готові вироби передбачено транспортувати електрокарами, то для розвороту
транспорту в цеху необхідно передбачати ширину проїзду в межах 2,5…3,5 м
(табл.5.2). Ширина площадок для обслуговування частин обладнання, що виступають
повинна бути не менше як 1,0 м.
Планування технологічного обладнання в механоскладальному цеху виконується у
масштабі 1:50, 1:100, 1:500 з обов’язковим
дотриманням встановлених
нормативною документацією вимог.
Таблиця 5.2
– Норми ширини магістральних
проїздів у механоскладальних цехах
|
Види транспортних
засобів |
Вантажо-підйомність, т |
Ширина проїзду, м |
|
|
для двостороннього руху |
для одностороннього руху |
||
|
Електрокари
|
1 3 5 |
3 3,5 4 |
2 2,5 3 |
|
Вилові
електрокари і навантажувачі |
0,5 1 3 |
3,5 4 5 |
2,5 3 3,5 |
|
Вантажні автомобілі |
1 |
4,5…5 |
3,5…4 |
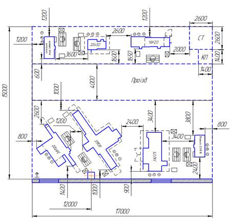
Приклад виконання плану
дільниці


Порядок виконання роботи
1. На основі розрахованої виробничої площі дільниці розробляти технологічний
план.
2. Висновки.
Зміст звіту
1. Мета і порядок виконання роботи.
2. Технологічний план дільниці.
3. Висновки.